Waardakker 9

BREDA

verkocht

verkocht

Geinteresseerd?

Omschrijving

Ruime hoekwoning met garage, uitbouw én dakopbouw in Breda Zuid!

Deze verrassend ruime woning beschikt over drie slaapkamers, een lichte uitbouw met lichtstraat, een leeferker én een dakopbouw. Daarnaast is er een garage, eigen oprit, tuinkamer en maar liefst drie bergingen.
De tuin biedt volop privacy en is bereikbaar middels een achterom. Goed onderhouden, voorzien van zonnepanelen en recent nageïsoleerd.
Gelegen in een rustige woonstraat met alle voorzieningen en uitvalswegen binnen handbereik.

Nieuwsgierig? Plan een bezichtiging en ontdek het zelf!

Ligging en omgeving
Deze hoekwoning ligt in een rustige woonstraat in wijk “Blauwe Kei” in Breda Zuid. Op loop- of fietsafstand vind je scholen, winkels (Valkeniersplein en of De Burcht), sportverenigingen en openbaar vervoer. Dankzij de gunstige ligging zijn ook de uitvalswegen (A16 en A27) snel bereikbaar, net als het bruisende stadscentrum van Breda.
Kortom, een fijne woonomgeving met het comfort van de stad binnen handbereik.

Bouwwijze en isolatievoorzieningen
De woning is gebouwd in 1960. In 1993 is een royale uitbouw aan de achterzijde geplaatst, voorzien van een lichtstraat die voor veel daglicht zorgt. Aan de voorzijde is in 2002 een erker toegevoegd, en in 1998 is de tweede verdieping vergroot door een dakopbouw, waardoor een extra slaapkamer is gerealiseerd.

De woning staat op één perceel en op het naastgelegen perceel is een vrijstaande garage (1993) gebouwd, met daarnaast een overkapping die nu is ingericht als tuinkamer. Achter in de tuin staan nog drie praktische bergingen. Zowel het dak van de garage als van de uitbouw is in 2018 vervangen, geïsoleerd en afgewerkt met EPDM dakbedekking.

In 2025 zijn de gevels nageïsoleerd. De betonnen begane grondvloer is geïsoleerd en aangesloten op een 2-groeps bijverwarming.
De woning wordt verwarmd via een Intergas HR-combiketel uit 2015. Daarnaast zijn in 2017 tien zonnepanelen geplaatst.
De ramen achter en aan de zijkant van de begane grond alsmede aan de achterzijde van de eerste verdieping zijn voorzien van rolluiken. De voorzijde (erker en verdieping) beschikt over elektrische screens.

Tuin
De achtertuin is met een diepte van ca. 7,35 meter en een breedte van ca. 7,68 meter (exclusief de tuinkamer) royaal en goed ingedeeld. De tuin is onderhoudsarm aangelegd. De tuinkamer is een fijne plek om in alle seizoenen te ontspannen, maar kan eenvoudig worden teruggebracht tot een veranda. De tuin is via een achterom bereikbaar.

Begane grond
Binnenkomst via de hal met trapopgang naar de eerste verdieping, praktische trapkast en toiletruimte voorzien van een wandcloset.
De ruime Z-vormige woonkamer is uitgebouwd aan de achterzijde en beschikt over een oppervlakte van circa 42 m².
Aan de achterzijde van de woning bevindt zich de keuken, ingericht met een hoekopgestelde inbouwkeuken. Deze is uitgerust met een 4-pits gaskookplaat, afzuigkap, oven, combimagnetron, koelkast en vaatwasser.

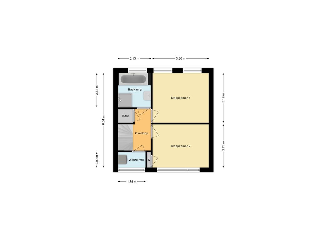
Eerste verdieping
Overloop met vaste kast en trapopgang naar de tweede verdieping. Op deze verdieping bevinden zich twee ruime slaapkamers.
De badkamer beschikt over een ligbad, inloopdouche, wastafelmeubel, mechanische ventilatie en een raam voor natuurlijke ventilatie en daglichttoetreding.

Tweede verdieping
Dankzij de dakopbouw is ook de tweede verdieping volwaardig bruikbaar. Hier bevindt zich een voorzolder, die momenteel in gebruik is als werkruimte, en een extra slaapkamer. De aanwezigheid van daglicht maakt ook deze etage aangenaam in gebruik.
+ Lees de volledige omschrijving

Kenmerken

Overdracht

Status verkocht
Aanvaarding in overleg

Bouw

Soort woning woonhuis
Soort woonhuis eengezinswoning
Type woonhuis hoekwoning
Aantal woonlagen 3
Bouwvorm bestaande bouw
Bouwjaar 1960
Huidige bestemming woonruimte
Onderhoud binnen goed tot uitstekend
Onderhoud buiten goed tot uitstekend
Voorzieningen mechanische ventilatie, rolluiken, buitenzonwering, zonnepanelen, natuurlijke ventilatie
Isolatie dakisolatie, muurisolatie, vloerisolatie

Energie

Energielabel B
Verwarming cv ketel
Warm water cv ketel
C.V.-ketel gas gestookte combi-ketel uit 2015 van Intergas, eigendom

Oppervlakten en inhoud

Woonoppervlakte 109 m²
Perceeloppervlakte 293 m²
Inhoud 408 m³
Bergruimte oppervlakte 66 m²
Buitenruimte oppervlakte 12 m²

Indeling

Aantal kamers 6
Aantal slaapkamers 3

Buitenruimte

Ligging aan rustige weg, in woonwijk
Tuin achtertuin met een oppervlakte van 56 m² en is gelegen op het noordoosten

Bergruimte

Parkeergelegenheid openbaar parkeren, op eigen terrein
Schuur/berging vrijstaand steen

Plattegronden

Locatie

Contact opnemen

Deel via social media